Panoramica Annuncio
Rif. Immobile: CA125
- Appartamento
- Quadrilocale
- 2
- 120 m²
- 2
Descrizione
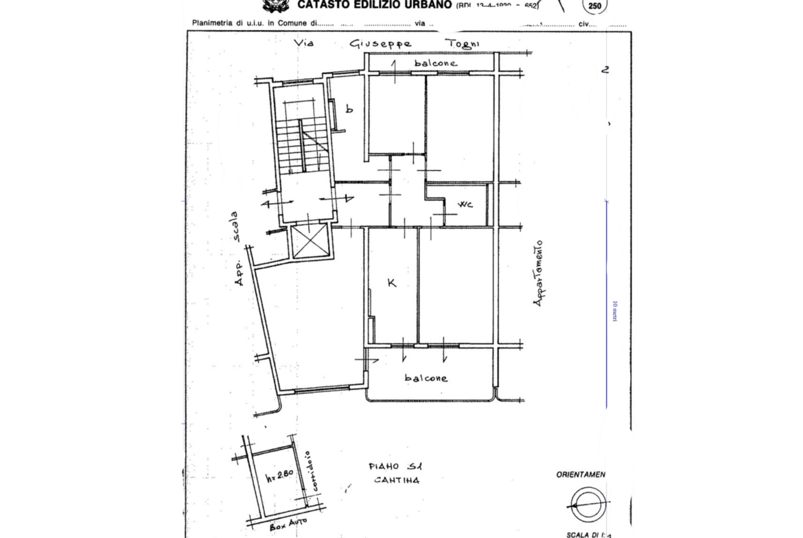
Se la tua famiglia sta crescendo e stai cercando uno spazio più ampio, confortevole e ben collegato, questo appartamento in Via Giuseppe Togni potrebbe essere esattamente quello che cerchi.
In uno dei contesti più richiesti di Colli Aniene, immerso nel verde questo appartamento è composto da
- Salone
- Tre camere da letto
- Due bagni
- Due balconi
- Box auto
- Cantina
Efficienza energetica: un plusvalore concreto
Indirizzo
Guarda la mappa-
Indirizzo: Via Giuseppe Togni
-
Zona: Colli Aniene
Dettagli
Updated on Aprile 8, 2026 presso 5:48 pm-
Rif. Immobile CA125
-
Prezzo €375.000
-
Superficie 120 m²
-
Camere da letto 3
-
Soggiorno/salone 1
-
Bagni 2
-
Posto Auto/Box 1
-
Tipologia Appartamento
-
Tipo Offerta Vendita
-
Balconi / Terrazzi 2
-
mq Balconi/Terrazzi 20
-
Cantine 1
-
Piano 2
-
Taglio Quadrilocale
-
Tipo Proprietà Piena Proprietà
Classe Energetica
-
Classe energetica: X
-
Indice di prestazione energetica globale: in fase di elaborazione
- A+
- A
- B
- C
- D
- E
- F
- G
- H
- in fase di elaborazione | Classe energetica XX






























